Kostenlose Bewertung von Immobilien

Équipe GmbH

zurück zur Suche

Büro- und Lagergebäude mit vielseitigen Nutzungsmöglichkeiten in bester Lage!

Allgemein

Standort:
01127 Dresden
Objektnummer:
5451
Zimmeranzahl:
1
Gesamtfläche:
386 m²
Verfügbar ab:
01.07.2026

Preise

Kaltmiete:
2.702,00 €
Nebenkosten:
965,00 €
Warmmiete:
3.667,00 €

Ausstattung

Stellplatz Art:
Freiplatz
Räume veränderbar:
ja
Klimaanlage:
ja
Sat/TV:
ja
DV-Verkabelung:
ja
Kabelkanäle:
ja

Objektbeschreibung

In exzellenter Lage in Dresden bietet dieses vielseitig nutzbare Gewerbeobjekt außergewöhnliches Potenzial für unterschiedlichste Nutzungskonzepte.

Dieses großzügige Büro- und Lagergebäude ermöglicht eine flexible Gestaltung und passt sich individuellen Anforderungen optimal an.

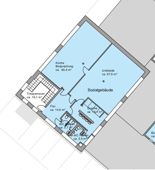
Es befinden sich bereits Toiletten, Duschen sowie eine geräumige Küche im Objekt.

Eine hochwertige und leistungsstarke Internetverkabelung sorgt für hohe Arbeitsgeschwindigkeit und ideale Voraussetzungen für moderne Arbeitsprozesse. Ergänzt wird das Angebot durch ein Sozialgebäude mit Küche und Duschen sowie Büroräume, die funktionales Arbeiten vor Ort komfortabel unterstützen.

Zahlreiche Außenstellplätze sorgen für optimale Erreichbarkeit und Komfort für Mitarbeiter, Kunden oder Besucher.

Die repräsentative Lage an einer stark frequentierten Verkehrsachse verbindet beste Sichtbarkeit mit hervorragender Anbindung. Ein Standort, der Raum für Ideen schafft und Ihrem Vorhaben den passenden Rahmen bietet.

Es besteht zudem die Möglichkeit in dem Objekt noch weitere Werkstatt- und Lagerräume anzumieten.

Die Fläche befindet sich in einem sehr gepflegten Zustand.

Bitte beachten Sie, dass das Angebot umsatzsteuer- und provisionspflichtig ist.

Wir freuen uns auf Ihre Kontaktaufnahme.

Weitere Angebote finden Sie auf unserer Homepage www.equipe-deutschland.de.

Lagebeschreibung

Pieschen ist ein alter Stadtteil im Nordwesten von Dresden. Seine Geschichte führt zurück bis in das Jahr 1292, als das sorbische Fischerdorf erstmalig urkundlich erwähnt wurde.

Läden des täglichen Bedarfs sind fußläufig schnell zu erreichen und in unmittelbarer Nähe.
Dank einer guten Verkehrsanbindung an den öffentlichen Nahverkehr und ebenso an die Autobahn gelangt man schnell ins Stadtzentrum und an weiter entfernte Ziele.

Informationen

Wir handeln im Auftrag des Eigentümers. Alle Angaben beruhen auf Auskünften und Unterlagen des Eigentümers. Eine Haftung für deren Richtigkeit und Vollständigkeit können wir außer im Falle von Vorsatz nicht übernehmen.
Wenn Sie uns per Kontaktaufnahme Anfragen zukommen lassen, werden Ihre Angaben aus dem Anfrageformular inklusive der von Ihnen dort angegebenen Kontaktdaten zwecks Bearbeitung der Anfrage und für den Fall von Anschlussfragen bei uns gespeichert. Die Verarbeitung der in das Kontaktformular eingegebenen Daten erfolgt somit ausschließlich auf Grundlage Ihrer Einwilligung (Art. 6 Abs. 1 lit. a DSGVO). Sie können diese Einwilligung jederzeit widerrufen. Dazu reicht eine formlose Mitteilung per E-Mail an uns. Die Rechtmäßigkeit der bis zum Widerruf erfolgten Datenverarbeitungsvorgänge bleibt vom Widerruf unberührt. Die von Ihnen im Kontaktformular eingegebenen Daten verbleiben bei uns, bis Sie uns zur Löschung auffordern oder Ihre Einwilligung zur Speicherung widerrufen. Zwingende gesetzliche Bestimmungen - insbesondere Aufbewahrungsfristen - bleiben unberührt.

Ihre Zustimmung ist erforderlich

Wir und unsere Drittanbieter verwenden Technologien (z. B. Cookies) zum Speichern und Abrufen von Informationen auf den Geräten der Nutzer, um personenbezogene Daten wie IP-Adressen oder Browserdaten zu verarbeiten. Damit Sie unsere Bewertungen auf anderen Plattformen sehen können müssen Sie diese akzeptieren.