Kostenlose Bewertung von Immobilien

Équipe GmbH

zurück zur Suche

Große flexible Gewerbeeinheit in bester Lage sucht ab Juni neue Mieter!

Allgemein

Standort:
Zwickauer Straße 7901187 Dresden
Objektnummer:
5466
Verfügbar ab:
01.06.2026

Preise

Kaltmiete:
6.940,00 €
Nebenkosten:
2.200,00 €
Warmmiete:
9.380,00 €
Stellplatz:
24,00 €

Ausstattung

Haustiere erlaubt:
ja
WG geeignet:
ja
Stellplatz Art:
Freiplatz
Stellplatzanzahl:
10
Barrierefrei:
ja
Seniorengerecht:
ja
Abstellraum:
ja

Zustand

Baujahr:
1995

Energieausweis

Art:
Bedarf
Endenergiebedarf:
116,50 kWh/(m²*a)
Ausstelldatum:
19.11.2012
Gültig bis:
31.08.2022

Objektbeschreibung

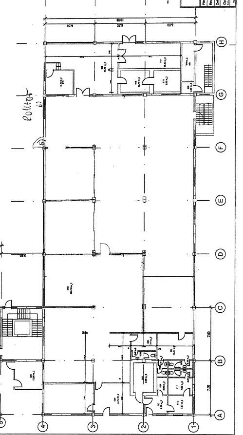
Zur Vermietung angeboten wird eine großzügige Gewerbefläche mit Einzelhandelscharakter im Erdgeschoss und einer Gesamtgröße von rund 925 m².

Die Einheit bietet eine offene, lichtdurchflutete Verkaufsfläche sowie ergänzende Lagerbereiche.
Separate Büro- und Sozialräume inklusive Küche sind vorhanden, ebenso zeitgemäß ausgestattete Sanitäranlagen.

Die funktionale Aufteilung ermöglicht eine effiziente Nutzung für unterschiedliche Handels- oder Dienstleistungskonzepte.


Das Umfeld ist geprägt durch frequenzstarke Gewerbemieter, unter anderem aus den Bereichen Kfz-Handel und -Zubehör, Tierbedarf, Buchhandel und Gesundheitsdienstleistungen, was attraktive Synergieeffekte schafft.


Zu dem Objekt gehören zehn PKW-Stellplätze, die angemietet werden können.


Der Mietbeginn ist voraussichtlich ab 01.06.2026 vorgesehen.

Lagebeschreibung

Zentrale Punkte der Stadt, wie Altstadt und Hauptbahnhof, liegen nur wenige Fahrminuten entfernt. Auch die Autobahnanbindungen sowie der Flughafen Dresden sind zügig erreichbar, was den Standort sowohl für Kunden als auch für Mitarbeiter attraktiv macht.

Eine gute Anbindung an den öffentlichen Nahverkehr ist ebenfalls gegeben und ergänzt die gute Infrastruktur.

Informationen

Wir handeln im Auftrag des Eigentümers. Alle Angaben beruhen auf Auskünften und Unterlagen des Eigentümers. Eine Haftung für deren Richtigkeit und Vollständigkeit können wir außer im Falle von Vorsatz nicht übernehmen.
Wenn Sie uns per Kontaktaufnahme Anfragen zukommen lassen, werden Ihre Angaben aus dem Anfrageformular inklusive der von Ihnen dort angegebenen Kontaktdaten zwecks Bearbeitung der Anfrage und für den Fall von Anschlussfragen bei uns gespeichert. Die Verarbeitung der in das Kontaktformular eingegebenen Daten erfolgt somit ausschließlich auf Grundlage Ihrer Einwilligung (Art. 6 Abs. 1 lit. a DSGVO). Sie können diese Einwilligung jederzeit widerrufen. Dazu reicht eine formlose Mitteilung per E-Mail an uns. Die Rechtmäßigkeit der bis zum Widerruf erfolgten Datenverarbeitungsvorgänge bleibt vom Widerruf unberührt. Die von Ihnen im Kontaktformular eingegebenen Daten verbleiben bei uns, bis Sie uns zur Löschung auffordern oder Ihre Einwilligung zur Speicherung widerrufen. Zwingende gesetzliche Bestimmungen - insbesondere Aufbewahrungsfristen - bleiben unberührt.

Ihre Zustimmung ist erforderlich

Wir und unsere Drittanbieter verwenden Technologien (z. B. Cookies) zum Speichern und Abrufen von Informationen auf den Geräten der Nutzer, um personenbezogene Daten wie IP-Adressen oder Browserdaten zu verarbeiten. Damit Sie unsere Bewertungen auf anderen Plattformen sehen können müssen Sie diese akzeptieren.