Kostenlose Bewertung von Immobilien

Équipe GmbH

zurück zur Suche

Flexible & großzügige Lagerflächen in Dresden-Seidnitz ab sofort anmietbar!

Allgemein

Standort:
01277 Dresden
Objektnummer:
5432
Zimmeranzahl:
3
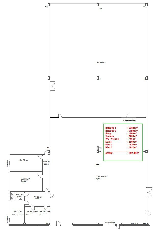
Gesamtfläche:
1.357 m²
Lagerfläche:
1.337 m²
Teilbar ab:
1337 m²
Etage:
Verfügbar ab:
01.03.2023

Preise

Kaltmiete:
8.145,00 €
Nebenkosten:
1.493,23 €
Warmmiete:
9.638,23 €
Stellplatz:
35,00 €

Ausstattung

Stellplatz Art:
Freiplatz
Stellplatzanzahl:
5
Räume veränderbar:
ja
Gewerbliche Nutzung erlaubt:
ja

Zustand

Baujahr:
1970

Energieausweis

Art:
Verbrauch
Stromwert:
55
Gültig bis:
16.05.2025
Energieverbrauchskennwert:
68,00 kWh/m²a

Objektbeschreibung

Dieses Objekt befindet sich in einem Gewerbegebiet im Dresdner Stadtteil Seidnitz.

Die hier zur Vermietung stehende Lagerhalle verfügt über eine Gesamtfläche von ca. 1.358 m² Ein großes 3-flügliges Falttor ermöglicht eine problemlose Anlieferung.
S-Bahn, Bus und Straßenbahn sind in wenigen Gehminuten zu erreichen und verkehren zum Teil bis spät in die Nacht.
Die Autobahnanbindung ist sehr gut, in nur wenigen Minuten erreicht man die A17.
Ins Stadtzentrum gelangt man innerhalb einer Viertelstunde.

- großes Tor für Anlieferungen
- Deckenbeleuchtung
- Betonboden
- separates Büro
- separate Küche

Außenstellplätze zum Preis von á 35,00 EUR können auf Wunsch mit angemietet werden.

Das Objekt wird von einem Hausmeisterdienst gepflegt und die Kosten sind bereits in den Nebenkosten mit verankert.

Es gibt im Objekt einen Wachdienst.

Alle angegebenen Mietpreise verstehen sich zzgl. gesetzl. Mehrwertsteuer.

Weitere Angebote können Sie gern auf www.equipe-deutschland.de anschauen. Wir freuen uns auf Ihre Kontaktaufnahme.

Lagebeschreibung

Seidnitz ist ein Stadtteil im Dresdner Osten und ist vor allem durch die Dresdner Galopprennbahn bekannt.

Der Stadtteil mit einfachen und mittleren Wohnlagen ist heute von Gewerbegebieten und pragmatischer Wohnbebauung geprägt. Die Bebauung ist dennoch verschiedenartig.

Hier siedelten sich zahlreiche Firmen und Gewerbebetriebe an.

In der locker bebauten Umgebung mit viel Grün ist die Anbindung zu den ÖPNV ausgezeichnet.

Die Infrastruktur ist gut ausgebaut. Einrichtungen mit Angeboten des täglichen Bedarfs, Arztpraxen sowie Apotheken sind auf kurzem Weg fußläufig zu erreichen.

Informationen

Wir handeln im Auftrag des Eigentümers. Alle Angaben beruhen auf Auskünften und Unterlagen des Eigentümers. Eine Haftung für deren Richtigkeit und Vollständigkeit können wir außer im Falle von Vorsatz nicht übernehmen.
Wenn Sie uns per Kontaktaufnahme Anfragen zukommen lassen, werden Ihre Angaben aus dem Anfrageformular inklusive der von Ihnen dort angegebenen Kontaktdaten zwecks Bearbeitung der Anfrage und für den Fall von Anschlussfragen bei uns gespeichert. Die Verarbeitung der in das Kontaktformular eingegebenen Daten erfolgt somit ausschließlich auf Grundlage Ihrer Einwilligung (Art. 6 Abs. 1 lit. a DSGVO). Sie können diese Einwilligung jederzeit widerrufen. Dazu reicht eine formlose Mitteilung per E-Mail an uns. Die Rechtmäßigkeit der bis zum Widerruf erfolgten Datenverarbeitungsvorgänge bleibt vom Widerruf unberührt. Die von Ihnen im Kontaktformular eingegebenen Daten verbleiben bei uns, bis Sie uns zur Löschung auffordern oder Ihre Einwilligung zur Speicherung widerrufen. Zwingende gesetzliche Bestimmungen - insbesondere Aufbewahrungsfristen - bleiben unberührt.

Ihre Zustimmung ist erforderlich

Wir und unsere Drittanbieter verwenden Technologien (z. B. Cookies) zum Speichern und Abrufen von Informationen auf den Geräten der Nutzer, um personenbezogene Daten wie IP-Adressen oder Browserdaten zu verarbeiten. Damit Sie unsere Bewertungen auf anderen Plattformen sehen können müssen Sie diese akzeptieren.