Kostenlose Bewertung von Immobilien

Équipe GmbH

zurück zur Suche

Repräsentative Büroflächen in exklusiver Lage im herzen von Dresden warten auf Sie!

Allgemein

Standort:
01067 Dresden
Objektnummer:
5408
Zimmeranzahl:
3
Gesamtfläche:
101 m²
Bürofläche:
101 m²
Büroteilfläche:
101 m²
Teilbar ab:
101 m²
Etage:
Erdgeschoss
Verfügbar ab:
01.01.2026

Preise

Kaltmiete:
1.515,00 €
Nebenkosten:
455,00 €
Warmmiete:
1.970,00 €
Stellplatz:
100,00 €

Ausstattung

Stellplatz Art:
Freiplatz
Stellplatzanzahl:
1
Sat/TV:
ja
DV-Verkabelung:
ja
Abstellraum:
ja
Denkmalgeschützt:
ja

Zustand

Baujahr:
2007
Austattung:
Gehoben
Austattung:
Gehoben

Energieausweis

Art:
Verbrauch
Wertklasse:
C
Gültig bis:
05.08.2024
Energieverbrauchskennwert:
95,00 kWh/m²a

Objektbeschreibung

Dieses liebevoll sanierte Gebäude aus dem 18. Jahrhundert bietet namhaften Mietern einen repräsentativen und zentralen Standort mit nur wenigen hundert Meter von der Frauenkirche, dem Neumarkt, dem Kulturpalast und das Kurländer Palais entfernt. Eine Büroeinheit in exponierter Lage im Herzen der Stadt Dresden.

Hier, im historischen Zentrum Dresdens, können Sie Ihre Kunden und Geschäftspartner in exklusiver Lage und Ausstattung empfangen. Nur wenige hundert Meter entfernt fließt die Elbe gemächlich an der Brühlschen Terrasse vorbei.

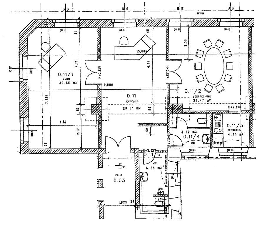
Die zu vermietende Gewerbeeinheit besteht aus 3 Räumen. Im Erdgeschoss befindet sich ein großer Empfangsbereich für Ihre Kunden und Gäste, ein großer Konferenzraum und ein Büroraum. Eine kleine Teeküche und zwei getrenntes WCs schließen die untere Einheit ab.

Sämtliche Räume im Objekt sind hochwertig und mit einem edlen Marmorboden ausgestattet. Eine Fußbodenheizung sorgt für behagliche Wärme.

Die Medienanschlüsse sind zahlreich vorhanden.

Ein Stellplatz für monatlich 100,00 EURO netto gehört zur Einheit.

Weitere Angebote finden Sie auf www.equipe-deutschland.de

Lagebeschreibung

Ob per Flugzeug, PKW oder Bahn - Ihre Gäste können Sie dank der guten Verkehrsanbindung bequem erreichen.

Bus und Straßenbahn sind in wenigen Gehminuten zu erreichen und verkehren zum Teil bis spät in die Nacht. Parkplätze und Tiefgaragen befinden sich in unmittelbarer Nachbarschaft. Die Einkaufsmöglichkeiten, die Nähe zur Elbe und zu den zahlreichen Sehenswürdigkeiten der Stadt Dresden runden die Lage des Historischen Gebäude perfekt ab.

Informationen

Wir handeln im Auftrag des Eigentümers. Alle Angaben beruhen auf Auskünften und Unterlagen des Eigentümers. Eine Haftung für deren Richtigkeit und Vollständigkeit können wir außer im Falle von Vorsatz nicht übernehmen.
Wenn Sie uns per Kontaktaufnahme Anfragen zukommen lassen, werden Ihre Angaben aus dem Anfrageformular inklusive der von Ihnen dort angegebenen Kontaktdaten zwecks Bearbeitung der Anfrage und für den Fall von Anschlussfragen bei uns gespeichert. Die Verarbeitung der in das Kontaktformular eingegebenen Daten erfolgt somit ausschließlich auf Grundlage Ihrer Einwilligung (Art. 6 Abs. 1 lit. a DSGVO). Sie können diese Einwilligung jederzeit widerrufen. Dazu reicht eine formlose Mitteilung per E-Mail an uns. Die Rechtmäßigkeit der bis zum Widerruf erfolgten Datenverarbeitungsvorgänge bleibt vom Widerruf unberührt. Die von Ihnen im Kontaktformular eingegebenen Daten verbleiben bei uns, bis Sie uns zur Löschung auffordern oder Ihre Einwilligung zur Speicherung widerrufen. Zwingende gesetzliche Bestimmungen - insbesondere Aufbewahrungsfristen - bleiben unberührt.

Ihre Zustimmung ist erforderlich

Wir und unsere Drittanbieter verwenden Technologien (z. B. Cookies) zum Speichern und Abrufen von Informationen auf den Geräten der Nutzer, um personenbezogene Daten wie IP-Adressen oder Browserdaten zu verarbeiten. Damit Sie unsere Bewertungen auf anderen Plattformen sehen können müssen Sie diese akzeptieren.