Kostenlose Bewertung von Immobilien

Équipe GmbH

zurück zur Suche

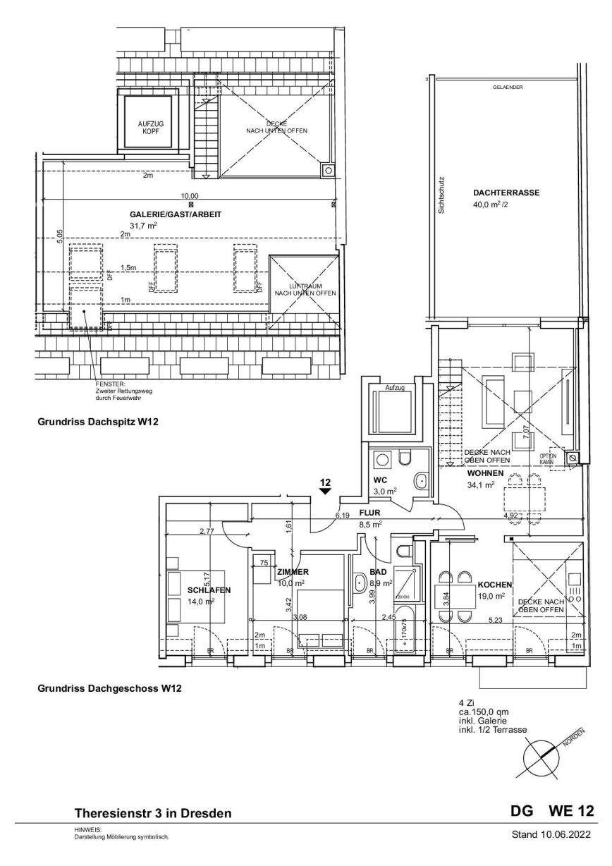
Hochwertige EBK & traumhafte eigene Dachterrasse zum Relaxen !

Allgemein

Standort:
Theresienstraße 301097 Dresden
Objektnummer:
5385
Zimmeranzahl:
4
Wohnfläche:
150 m²
Kellerfläche:
8 m²
Balkon/Terrasse Fläche:
40 m²
Teilbar ab:
150 m²
Etage:
2
Verfügbar ab:
15.10.2025

Preise

Kaltmiete:
2.220,00 €
Nebenkosten:
450,00 €
Warmmiete:
2.670,00 €
Stellplatz:
80,00 €

Ausstattung

Stellplatz Art:
Freiplatz
Stellplatzanzahl:
1
Terrassenanzahl:
1
Sat/TV:
ja
Rollladen:
ja
Gäste WC:
ja
Fahrradraum:
ja
Wasch- und Trockenraum:
Ja

Zustand

Baujahr:
2021
Austattung:
Gehoben
Austattung:
Gehoben

Energieausweis

Art:
Bedarf
Endenergiebedarf:
52,30 kWh/(m²*a)
Wertklasse:
B
Baujahr:
2020

Objektbeschreibung

Das Objekt befindet sich direkt im Herzen der Dresdner Neustadt, in einer ruhigen und grünen Seitenstraße. Das Stadthaus beherbergt 13 exklusive Wohnungen, die sich auf 4 Etagen verteilen. Aufgeteilt in 2-4 Zimmer mit ca. 46 m² - ca. 113 m² Wohnfläche, verfügt jede Wohnung über eine Terrasse - teilweise mit Gartenanteil - oder mindestens einen Balkon.

Zu den Ausstattungsmerkmalen zählen:

+ moderne und durchdachte Grundrisse
+ moderne Einbauküche
+ teilweise barrierefreier Zugang
+ Lift in die Etagen
+ Wohnungen mit Terrasse - teilweise mit Gartenanteil
+ großzügige Balkone
+ Bäder mit Fenster und Gäste-WC
+ Fußbodenheizung mit Raumthermostat
+ Elegantes Echtholzparkett
+ Moderne großformatige Fliesen
+ teilweise bodentiefe Fenster
+ 3-fach Wärmeschutzverglasung
+ Elektrische Rollläden in allen Räumen
+ Gegensprechanlage mit Videofunktion
+ Stellplatz im Innenhof
+ Kellerabteil
+ Fahrradraum
+ Waschmaschinenraum



Weitere Wohnungen können Sie gern auf unserer Homepage unter www.equipe-deutschland.de anschauen.

Lagebeschreibung

Die Dresdner Neustadt, bestehend aus Innerer und Äußerer Neustadt, ist als Sanierungsgebiet festgesetzt und ein sehr beliebtes Wohnviertel. Der Stadtteil kann sich getrost als das heimliche Zentrum von Dresden bezeichnen! Die Neustadt bietet Kultur, Gastronomie, Shopping, aber auch durch die Nähe zur Elbe und zur Dresdner Heide zahlreiche Erholungsmöglichkeiten. Das Viertel um Königstraße, Obergraben und Rähnitzgasse lädt mit schönen Restaurants, teils in barocken Innenhöfen gelegen, zum Verweilen ein. Hier kann man kleine, stimmungsvolle Einkaufspassagen entdecken. Galerien und Antiquariate bieten Anregungen für Kunstfreunde. Konsequenterweise ist die Königstraße heute Dresdens vornehmste Einkaufsadresse. Das Viertel um die Königstraße zählt zu den attraktivsten Dresdens, haben sich doch hier Architektur und Atmosphäre der bürgerlichen Barockstadt erhalten. Die bunte Mischung der Bevölkerung in der Inneren Neustadt ist charakteristisch. Hier wohnen alle nebeneinander: Senioren, Studenten, Rechtsanwälte, Alleinstehende und Familien. Für die Kinder entstanden neue Spielplätze, Grund- und Mittelschulen sowie ein Gymnasium. In der Nähe befindlich: Grundschule, Realschule, Hauptschule, Gymnasium, Kindertagesstätten, Nah-und Fernverkehrsanbindungen, Einkaufsmöglichkeiten.rsität Dresden.

Informationen

Wir handeln im Auftrag des Eigentümers. Alle Angaben beruhen auf Auskünften und Unterlagen des Eigentümers. Eine Haftung für deren Richtigkeit und Vollständigkeit können wir außer im Falle von Vorsatz nicht übernehmen.
Wenn Sie uns per Kontaktaufnahme Anfragen zukommen lassen, werden Ihre Angaben aus dem Anfrageformular inklusive der von Ihnen dort angegebenen Kontaktdaten zwecks Bearbeitung der Anfrage und für den Fall von Anschlussfragen bei uns gespeichert. Die Verarbeitung der in das Kontaktformular eingegebenen Daten erfolgt somit ausschließlich auf Grundlage Ihrer Einwilligung (Art. 6 Abs. 1 lit. a DSGVO). Sie können diese Einwilligung jederzeit widerrufen. Dazu reicht eine formlose Mitteilung per E-Mail an uns. Die Rechtmäßigkeit der bis zum Widerruf erfolgten Datenverarbeitungsvorgänge bleibt vom Widerruf unberührt. Die von Ihnen im Kontaktformular eingegebenen Daten verbleiben bei uns, bis Sie uns zur Löschung auffordern oder Ihre Einwilligung zur Speicherung widerrufen. Zwingende gesetzliche Bestimmungen - insbesondere Aufbewahrungsfristen - bleiben unberührt.

Ihre Zustimmung ist erforderlich

Wir und unsere Drittanbieter verwenden Technologien (z. B. Cookies) zum Speichern und Abrufen von Informationen auf den Geräten der Nutzer, um personenbezogene Daten wie IP-Adressen oder Browserdaten zu verarbeiten. Damit Sie unsere Bewertungen auf anderen Plattformen sehen können müssen Sie diese akzeptieren.