Kostenlose Bewertung von Immobilien

Équipe GmbH

back to search

Attraktives & großes ETW (3) Paket in Heidenau!

Generally

Standort:
01809 Heidenau
Objektnummer:
4253
Zimmeranzahl:
9
Wohnfläche:
313 m²
Vermietbare Fläche:
313 m²

Prices

Kaufpreis:
999.800,00 €
Rendite:
2,36 %
Mieteinnahmen Ist p.a.:
24.444,00 €

Furnishing

Fliesenboden:
ja
Laminatboden:
ja
Abstellraum:
ja
Rollladen:
ja
Gäste WC:
ja
Badezimmer:
Wanne und Dusche
Fenster im Bad:
ja
Heizungsart:
Zentralheizung
Personenaufzug:
ja
Keller:
ja
Fahrradraum:
ja
Wasch- und Trockenraum:
Ja

Condition

Baujahr:
1993
Gebäudeart:
Neubau

Energy certificate

Art:
Verbrauch
Primärenergieträger:
Gas
Wertklasse:
C
Baujahr:
1993
Energieverbrauchskennwert:
98,00 kWh/m²a

Objektbeschreibung

Es handelt sich bei diesem Angebot um ein attraktives Paket aus 3 Eigentumswohnungen. Das Wohn- und Geschäftshaus wurde 1993 errichtet und befindet sich in Heidenau. Die gute Infrastruktur und die Nähe zu Dresden bietet für ihre Einwohner ein hohes Maß an Komfort.

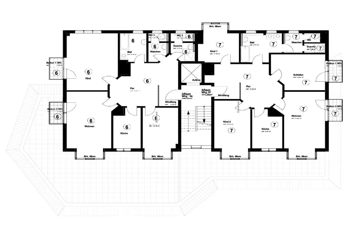
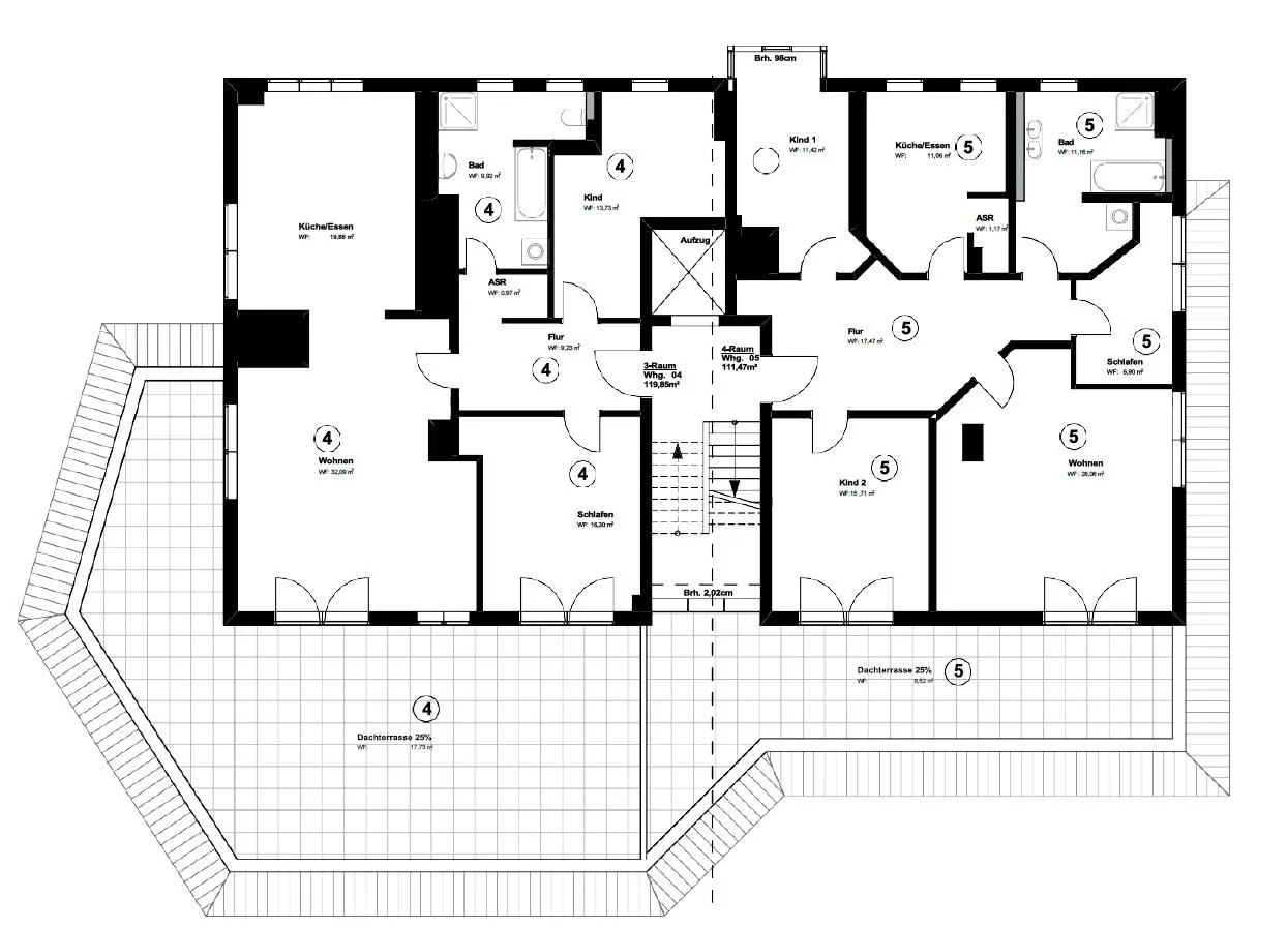
Das Paket besteht aus folgenden Einheiten:

- Wohnung 4: 3 Zimmer mit ca. 120 m²
- Wohnung 6: 3 Zimmer mit ca. 109 m²
- Wohnung 8: 3 Zimmer mit ca. 84,5 m²

Sowohl das Haus als auch die einzelnen Wohneinheiten sind sehr gepflegt und verfügen über eine gute Ausstattung wie mehrere Balkone, Dachterrassen, Tageslichtbäder, separate Duschbäder und Gäste-WCs.

Die laufenden Instandhaltungen sind regelmäßig durchgeführt worden, so dass die Qualität für sich spricht.

Die Wohnungen können auch einzeln erworben werden. Sprechen Sie uns hierzu einfach an.

Die Angebote sind für den Erwerber provisionsfrei.

Weitere Angebote finden Sie unter www.equipe-deutschland.de

Lagebeschreibung

Die Stadt Heidenau liegt im oberen Elbtal und ist die zweitgrößte Stadt im Landkreis Sächsische Schweiz. Durch seine günstige Verkehrsanbindung ist Heidenau die Stadt der kurzen Wege: Autobahn A17, S-Bahnlinie S1 und S2, und diverse Buslinien sowie Schiffsverbindungen sorgen für eine gute und schnelle Erreichbarkeit aller Ziele in Heidenau und von Heidenau aus. In
Heidenau gibt es vielfältige Möglichkeiten zur Freizeitgestaltung, u. a.
großzügig angelegte Spielplätze und Sportanlagen. Besondere touristische Attraktion, aber auch eine Oase der Ruhe und Entspannung, ist der Barockgarten Großsedlitz - eine der bekanntesten barocken Gartenanlagen Deutschlands aus der Zeit Augusts des Starken. Für die Schulbildung sorgen drei Grundsschule, eine Mittelschule, ein Heidenau sind die Kleinsten
gut aufgehoben.

Informationen

Wir handeln im Auftrag des Eigentümers. Alle Angaben beruhen auf Auskünften und Unterlagen des Eigentümers. Eine Haftung für deren Richtigkeit und Vollständigkeit können wir außer im Falle von Vorsatz nicht übernehmen.
Wenn Sie uns per Kontaktaufnahme Anfragen zukommen lassen, werden Ihre Angaben aus dem Anfrageformular inklusive der von Ihnen dort angegebenen Kontaktdaten zwecks Bearbeitung der Anfrage und für den Fall von Anschlussfragen bei uns gespeichert. Die Verarbeitung der in das Kontaktformular eingegebenen Daten erfolgt somit ausschließlich auf Grundlage Ihrer Einwilligung (Art. 6 Abs. 1 lit. a DSGVO). Sie können diese Einwilligung jederzeit widerrufen. Dazu reicht eine formlose Mitteilung per E-Mail an uns. Die Rechtmäßigkeit der bis zum Widerruf erfolgten Datenverarbeitungsvorgänge bleibt vom Widerruf unberührt. Die von Ihnen im Kontaktformular eingegebenen Daten verbleiben bei uns, bis Sie uns zur Löschung auffordern oder Ihre Einwilligung zur Speicherung widerrufen. Zwingende gesetzliche Bestimmungen - insbesondere Aufbewahrungsfristen - bleiben unberührt.

Your consent is required

We and our third-party providers use technologies (e.g. cookies) to store and retrieve information on users' devices in order to process personal data such as IP addresses or browser data. In order to see our reviews on other platforms, you must accept them.