Kostenlose Bewertung von Immobilien

Équipe GmbH

back to search

Raum für Visionen – Reihenhäuser mit Loftcharakter und Renditepotenzial in historischer Scheune!

Generally

Standort:
01665 Klipphausen
Objektnummer:
5420
Zimmeranzahl:
28
Wohnfläche:
1.293 m²
Vermietbare Fläche:
1.293 m²
Grundstücksfläche:
2.814 m²
Teilbar ab:
1293 m²
Etage:

Prices

Kaufpreis:
480.000,00 €

Furnishing

Condition

Baujahr:
1905

Objektbeschreibung

Charmante Scheune mit großem Potenzial: Ideal für Wohnprojekt oder individuelle Nutzung

Zum Verkauf steht eine außergewöhnliche Scheune mit Entwicklungspotenzial bei Klipphausen. Das großzügige Grundstück umfasst ca. 2.814 m² und bietet Platz für große Wohnträume.

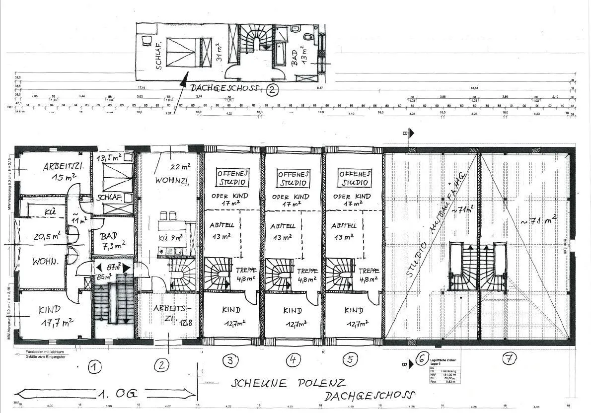
Die Scheune selbst überzeugt durch eine Vielzahl interessanter Perspektiven: Eine Umnutzung zu 5 bis 7 Wohneinheiten ist bereits genehmigt. Zudem liegt für das Objekt bereits eine Vorplanung eines Architekturbüros vor. Damit kann eine vermietbare Fläche von bis zu 1.293,00 m² entstehen und ein Kaltmietpreis von ca. 10.500,00 EUR - 12.900,00 EUR pro Monat erwirtschaftet werden.

Highlights im Überblick:

• Voll erschlossen: Zwei vollwertige Breitband-Hausanschlüsse vorhanden – beste Voraussetzungen für modernes Wohnen oder Arbeiten.

• Zugang & Rechte gesichert: Über den südlichen Grundstücksstreifen besteht ein gesichertes Geh- und Fahrtrecht bis zum Nordgiebel der benachbarten Getreidelagerhalle.

• Nutzfläche mit Charakter: Die charmante Substanz der Scheune bietet reichlich Platz für kreative Gestaltungsideen und individuelles Wohnen im ländlich-urbanen Stil.

• Außenfläche: Der zugehörige Hofbereich ist der Scheune zugeordnet.

• Lagerbestand: Rund 50 m³ hochwertiges Brettmaterial sind derzeit eingelagert und können gegen Ablöse übernommen werden.

• Voll im Grünen mit Weitblick und doch nur geringe Pflegefläche

• Hervorragende Infrastruktur (Autobahnbindung, Schulen, Nähe zur Landeshauptstadt)

Besonderheit: Der bestehende Verbinderbau zwischen der Scheune und der südlichen Getreidelagerhalle kann problemlos entfernt werden, um das Objekt vollständig freizustellen.

Dieses Objekt bietet Ihnen nicht nur Raum zur kreativen Entfaltung, sondern auch eine zukunftssichere Investition mit hoher Wertstabilität – sei es als Wohnprojekt oder zur individuellen Nutzung.

Weitere Angebote können Sie sich unter www.equipe-deutschland.de anschauen.

Lagebeschreibung

Die angebotene Scheune befindet sich im Ortsteil Klipphausen der gleichnamigen Gemeinde im Landkreis Meißen. Die zentrale Lage zwischen den Städten Meißen (ca. 6 km nördlich) und Dresden (ca. 20 km östlich) ermöglicht eine hervorragende Anbindung. Die Autobahn A4 ist über den Anschluss Wilsdruff (ca. 8 km entfernt) schnell erreichbar, welcher zwischen den Autobahndreiecken Nossen und Dresden-West liegt. Die Umgebung zeichnet sich durch eine reizvolle Naturkulisse aus, eingebettet in die Landschaftsschutzgebiete der Linkselbischen Täler und der Triebischtäler mit der Kleinen Triebisch in unmittelbarer Nähe. Diese Lage bietet sowohl Ruhe und Erholung als auch eine gute Erreichbarkeit städtischer Zentren für Pendler und Investoren. In nur 35 Minuten erreicht man das Zentrum der Landeshauptstadt Dresden.

Informationen

Wir handeln im Auftrag des Eigentümers. Alle Angaben beruhen auf Auskünften und Unterlagen des Eigentümers. Eine Haftung für deren Richtigkeit und Vollständigkeit können wir außer im Falle von Vorsatz nicht übernehmen.
Wenn Sie uns per Kontaktaufnahme Anfragen zukommen lassen, werden Ihre Angaben aus dem Anfrageformular inklusive der von Ihnen dort angegebenen Kontaktdaten zwecks Bearbeitung der Anfrage und für den Fall von Anschlussfragen bei uns gespeichert. Die Verarbeitung der in das Kontaktformular eingegebenen Daten erfolgt somit ausschließlich auf Grundlage Ihrer Einwilligung (Art. 6 Abs. 1 lit. a DSGVO). Sie können diese Einwilligung jederzeit widerrufen. Dazu reicht eine formlose Mitteilung per E-Mail an uns. Die Rechtmäßigkeit der bis zum Widerruf erfolgten Datenverarbeitungsvorgänge bleibt vom Widerruf unberührt. Die von Ihnen im Kontaktformular eingegebenen Daten verbleiben bei uns, bis Sie uns zur Löschung auffordern oder Ihre Einwilligung zur Speicherung widerrufen. Zwingende gesetzliche Bestimmungen - insbesondere Aufbewahrungsfristen - bleiben unberührt.

Your consent is required

We and our third-party providers use technologies (e.g. cookies) to store and retrieve information on users' devices in order to process personal data such as IP addresses or browser data. In order to see our reviews on other platforms, you must accept them.